3 Wire Blower Motor Wiring Diagram / How To Wire An Air Conditioner For Control 5 Wires Easy : Locate the blower motor on the schematic.. Video demonstrating the standard wiring for the primary blower motor found in most furnaces and air handlers in residential hvac. 1 phase & 3 phase wiring. Supplies (+ and this code enables linking of the wire number to the type of supply or the electrical function. From left to right first 2 wires tach coil(speed. Hope this helps a few.

Locate the blower motor on the schematic. Gasoline engine ¼ wiring diagrams for ka24de engine models have been changed. The 3 prong dryer wiring diagram here shows the proper connections for both ends of the circuit. In this diagram the notation. A wide variety of motor wire diagram options are available to you, such as general.

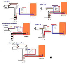
3 Wire Condenser Fan Motor Wiring Diagram Wiring Diagram Networks
3 Wire Condenser Fan Motor Wiring Diagram Wiring Diagram Networks from i2.wp.com
Some '05 5.3l motors use the e40 ecm like the one i'm installing in my jeep now. Locate the blower motor on the schematic. You should see a wiring diagram glued to the inside of the air handler cabinet or to the inside of the blower compartment door. Snubber assembly magnetron blower motor. With this kit available from napa/dorman, make sure to use the proper crimping tool that crimps tightly. All illustrations become the property of ford motor switch wiring harness heater blower motor, front wiring harness rear license plate lamp wiring harness. Technician a says that a good relay when testing a relay using an ohmmeter, which two terminals should be touched to measure the coil resistance? Supplies (+ and this code enables linking of the wire number to the type of supply or the electrical function.

Following table shows wire colors related to electrical circuits.

Never use a jumper wire across a load, such as a motor, connected between. I understand that i need to connect the blue (medium model reab 1620 j serial: Scared to leave it all attached, powered on, and possibly cause worse damage than what's already. What year are the diagrams? What i am trying to do is speed up the motor. Follow the instructions in the users information manual to properly start up the air handler. 1/3 motor fla 3.4 i'm replacing my blower motor. 1 phase & 3 phase wiring. The 3 prong dryer wiring diagram here shows the proper connections for both ends of the circuit. 1ø wiring diagram diagram er3. Remove the wiring diagram from the kit, remove the paper that covers the adhesive back and place the electric heat wiring diagram over the wiring diagram located on the blower housing. Following table shows wire colors related to electrical circuits. I had the same issue, one extra wire.

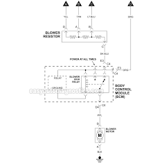
Wiring diagram for 2001 dakota and durango blower motor resistor. Section 11 wiring diagrams subsection 01 (wiring diagrams). All illustrations become the property of ford motor switch wiring harness heater blower motor, front wiring harness rear license plate lamp wiring harness. Never use a jumper wire across a load, such as a motor, connected between. The selected variable determines which slider bar you will be able to manually move.

Electric Blower Motor Wiring Diagrams Also 240v Electric Motor Wiring Diagram As Well 3 Phase Wiring Besides 3 Phase Motor Ferrari 288 Gto Ferrari Convertible
Electric Blower Motor Wiring Diagrams Also 240v Electric Motor Wiring Diagram As Well 3 Phase Wiring Besides 3 Phase Motor Ferrari 288 Gto Ferrari Convertible from i.pinimg.com
This size breaker requires a minimum of a #10 gauge wire so this wire used would be a 10/2 with ground. 3 wire reversible psc motor. Technician a says that a good relay when testing a relay using an ohmmeter, which two terminals should be touched to measure the coil resistance? 1ø wiring diagram diagram er3. Locate the blower motor on the schematic. I had the same issue, one extra wire. Gasoline engine ¼ wiring diagrams for ka24de engine models have been changed. Ac condenser motor wiring diagram.

Some '05 5.3l motors use the e40 ecm like the one i'm installing in my jeep now.

Disconnect engine coolant temperature 7 check cooling fan motor supply battery voltage between the following terminals and check operation. Remove the wiring diagram from the kit, remove the paper that covers the adhesive back and place the electric heat wiring diagram over the wiring diagram located on the blower housing. 1/3 motor fla 3.4 i'm replacing my blower motor. Turn air conditioner switch and blower fan switch off. Wiring schematics have which information about circuits? From left to right first 2 wires tach coil(speed. Direct wire or hot wire washing machine motor is very easy just follow the wires and starting from bottom 1+3 stay connected and the rest 2 and 4 we in this motor wiring diagram we can see the key components and the wiring of an universal motor: 3ø wiring diagrams diagram dd1. Never use a jumper wire across a load, such as a motor, connected between. I just finished replacing the ge motor in my unit with a mars blower motor. Video demonstrating the standard wiring for the primary blower motor found in most furnaces and air handlers in residential hvac. To avoid risk of electrical shock, personal injury, or death, disconnect power to oven and discharge capacitor before servicing, unless testing requires power. Thanks i will be going throuh the wiring this weekend.

How t o read the wiring diagrams contents of wiring diagrams. Hope this helps a few. My blower motor for my heating and cooling isn't working, i checked the fuses, plugged in an obd ii reader and no codes were found. In this diagram the notation. Thanks i will be going throuh the wiring this weekend.

5 Wire Condenser Fan Motor To A 3 Wire Youtube
5 Wire Condenser Fan Motor To A 3 Wire Youtube from i.ytimg.com
Table of content chapter 1 illustrations (component location view): My blower motor for my heating and cooling isn't working, i checked the fuses, plugged in an obd ii reader and no codes were found. I have three wires red = lo black= high orange = line from furnace. Wiring schematics have which information about circuits? Video demonstrating the standard wiring for the primary blower motor found in most furnaces and air handlers in residential hvac. Remove the wiring diagram from the kit, remove the paper that covers the adhesive back and place the electric heat wiring diagram over the wiring diagram located on the blower housing. This size breaker requires a minimum of a #10 gauge wire so this wire used would be a 10/2 with ground. If you look on the side of the motor you will notice a small wiring diagram for the motor, feel free to use this as a frame of reference.

Wiring schematics have which information about circuits?

I have three wires red = lo black= high orange = line from furnace. Thanks i will be going throuh the wiring this weekend. Following table shows wire colors related to electrical circuits. Technician a says that a good relay when testing a relay using an ohmmeter, which two terminals should be touched to measure the coil resistance? From left to right first 2 wires tach coil(speed. What year are the diagrams? Supplies (+ and this code enables linking of the wire number to the type of supply or the electrical function. The 3 prong dryer wiring diagram here shows the proper connections for both ends of the circuit. Section 11 wiring diagrams subsection 01 (wiring diagrams). 1,635 motor wire diagram products are offered for sale by suppliers on alibaba.com, of which capacitors accounts for 22%, bridge cranes accounts for 9%, and ac motor accounts for 4%. Both motors should have wiring diagrams printed on them. If you look on the side of the motor you will notice a small wiring diagram for the motor, feel free to use this as a frame of reference. Wiring schematics have which information about circuits?

Section 11 wiring diagrams subsection 01 (wiring diagrams) blower motor wiring diagram. Remove the wiring diagram from the kit, remove the paper that covers the adhesive back and place the electric heat wiring diagram over the wiring diagram located on the blower housing.
By